2 Bedroom
2 Bathroom
1,150 ft2
Bungalow
Air Exchanger
Baseboard Heaters
Not Landscaped
$279,900
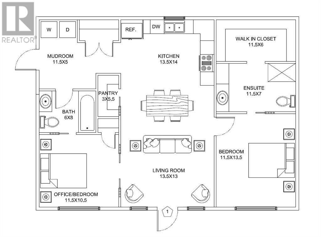
Welcome to your BRAND NEW coastal home in beautiful, historic Bonavista—where stunning ocean views and modern design come together effortlessly. This bright, open-concept two-bedroom home is designed for easy living and everyday comfort. The primary suite is a standout, featuring its own private ensuite, a spacious walk-in closet with custom cabinetry, and convenient washer-dryer hookups right where you need them. The second bedroom also offers great flexibility, with a jack-and-jill ensuite that connects to both the bedroom and the mudroom—perfect for guests or coming in after a day by the water. Throughout the home, you’ll find high-quality, custom-made cabinetry in the kitchen, bathrooms, and primary walk-in closet, adding both style and function. The kitchen, flows seamlessly into the living space, creating a bright and welcoming area to relax or entertain while taking in those beautiful ocean views. Kitchen also has a convenient pantry wth butcher block shelf. Water proof Vinyl Plank flooring flows through the entire space. This property offers a 10-year Atlantic Home Warranty. Set just minutes from Bonavista’s shops, trails, and rugged coastline, this home is ideal as a full-time residence, vacation getaway, or investment property. A fresh, modern new build in one of Newfoundland’s most charming coastal communities—this one is worth a look. (id:64343)
Property Details
|
MLS® Number
|
1296614 |
|
Property Type
|
Single Family |
|
Amenities Near By
|
Highway, Recreation, Shopping |
|
Equipment Type
|
None |
|
Rental Equipment Type
|
None |
|
View Type
|
Ocean View |
Building
|
Bathroom Total
|
2 |
|
Bedrooms Above Ground
|
2 |
|
Bedrooms Total
|
2 |
|
Architectural Style
|
Bungalow |
|
Constructed Date
|
2025 |
|
Construction Style Attachment
|
Detached |
|
Cooling Type
|
Air Exchanger |
|
Exterior Finish
|
Vinyl Siding |
|
Flooring Type
|
Other |
|
Foundation Type
|
Poured Concrete |
|
Heating Fuel
|
Electric |
|
Heating Type
|
Baseboard Heaters |
|
Stories Total
|
1 |
|
Size Interior
|
1,150 Ft2 |
|
Type
|
House |
|
Utility Water
|
Municipal Water |
Land
|
Access Type
|
Year-round Access |
|
Acreage
|
No |
|
Land Amenities
|
Highway, Recreation, Shopping |
|
Landscape Features
|
Not Landscaped |
|
Sewer
|
Municipal Sewage System |
|
Size Irregular
|
.25 Acre |
|
Size Total Text
|
.25 Acre|under 1/2 Acre |
|
Zoning Description
|
Mixed |
Rooms
| Level |
Type |
Length |
Width |
Dimensions |
|
Main Level |
Other |
|
|
11.5 x 6 |
|
Main Level |
Ensuite |
|
|
11.5 x 7 |
|
Main Level |
Primary Bedroom |
|
|
11.5 x 13.5 |
|
Main Level |
Ensuite |
|
|
6 x 8 |
|
Main Level |
Bedroom |
|
|
11.5 x 10.5 |
|
Main Level |
Not Known |
|
|
3 x 5.5 |
|
Main Level |
Living Room |
|
|
13.5 x 13 |
|
Main Level |
Eat In Kitchen |
|
|
13.5 x 14 |
|
Main Level |
Mud Room |
|
|
11.5 x 5 |
https://www.realtor.ca/real-estate/29659675/8-sebastian-drive-bonavista