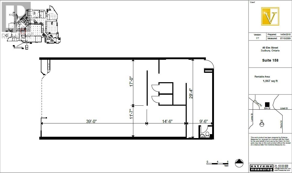
40 Elm Street Unit# 158 Sudbury, Ontario P3C 1S8

Acreage

$10 / ft2

Located in the heart of Downtown Sudbury, Elm Place is a premier, high-traffic destination offering excellent visibility, a diverse tenant mix, and convenient access for both customers and employees. This Class A property provides flexible space options ranging from 200 to 50,000 square feet, accommodating businesses of all sizes and industries. Elm Place features Sudbury’s largest downtown parking facility, which has undergone significant upgrades. The three-story garage offers 950+ stalls, including ground-level, covered, and upper-level parking. The building has also undergone extensive renovations, boasting luxury finishes throughout its common areas, such as marble flooring, elegant cornice details, and more. On-site amenities enhance both tenant and visitor experiences, including a food court, gym, movie theatre, spa, and the Radisson Hotel. Conveniently accessible from Elm Street and Ste. Anne Road, this prime location benefits from a daily traffic count of 28,847 vehicles and foot traffic of approximately 5,000 people per day, ensuring exceptional exposure and accessibility. This 1,967 sq. ft. open-concept space is ideal for various uses, but move-in ready for retail, featuring racking and fitting rooms. Secure your space in one of Sudbury’s most dynamic commercial hubs! Contact us today for leasing details. (id:64343)

Business

Business Type Other, Retail and Wholesale
Business Sub Type Offices, General retail

Property Details

MLS® Number 2121023
Property Type Retail
Equipment Type Unknown
Rental Equipment Type Unknown
Road Type Paved Road

Building

Amenities Air Conditioning, Exercise Centre, Secured Parking, Shopping Area
Fire Protection Controlled Entry
Type Commercial Mix
Utility Water Municipal Water

Parking

Visitor Parking

Land

Access Type Highway Nearby, Year-round Access
Acreage Yes
Sewer Municipal Sewage System
Size Total Text 3 - 10 Acres
Zoning Description C6 (4)

https://www.realtor.ca/real-estate/27988540/40-elm-street-unit-158-sudbury

Contact Us

Contact us for more information


Generating Captcha

Your Favourites

 

No Favourites Found