7 Bedroom
5 Bathroom
3,546 ft2
Fireplace
Central Air Conditioning
Forced Air
Landscaped
$3,275,000
A New Gorgouse build with Monogram homes is now available! Currently under construction and to be fully finished in late June. Sitting on a full 50x120 lot & located on a quiet, tree-lined street in prestigious Upper Mount Royal, this exceptional new build offers over 3,500 sq.ft. of meticulously designed living space above grade, paired with a rare quad garage and an outstanding floor plan tailored for modern luxury living.Thoughtfully designed with both elegance and functionality in mind, the main level features soaring 10-foot ceilings and an expansive open-concept layout anchored by a stunning great room with a gas fireplace and oversized windows that flood the space with natural light. A chef-inspired kitchen sits at the heart of the home, complete with an oversized Taj Mahal Quartz island, premium appliance layout with pot filler, and a fully appointed butler’s pantry—perfect for entertaining at scale. The adjacent dining area opens seamlessly to the rear deck, creating an effortless indoor-outdoor flow. A private front office, sophisticated foyer, mudroom with built-ins, and a stylish wet bar complete the main floor.Upstairs, the home continues to impress with a well-appointed second level offering four spacious bedrooms, including a luxurious primary retreat featuring a spa-inspired ensuite with a freestanding tub, curbless shower, and a generous walk-in wardrobe. Three additional bedrooms are thoughtfully laid out—one with its own ensuite, while the others share a beautifully designed main bath. A dedicated upper laundry room adds everyday convenience, while open-to-below design elements enhance the sense of space and architectural sophistication throughout.The fully developed lower level provides an additional 1,500+ sq.ft. of living space, ideal for entertaining and relaxation. Here you’ll find a large media/family room, wet bar, a Flex room that could be a great space for an office or gym or a bedroom. 2 additional spacious bedrooms, and ample storag e—perfectly suited for guests or growing families.Completing this remarkable property is a rare rear quad garage, offering exceptional space for vehicles, storage, or hobby use—an increasingly hard-to-find feature in this sought-after inner-city location.With its timeless architecture, refined layout, and premium setting in one of Calgary’s most desirable communities, this home represents a rare opportunity to own a truly distinguished property in Upper Mount Royal.Additional Detailed plans and Selections are available to view in the Attachments (id:64343)
Property Details
|
MLS® Number
|
A2301100 |
|
Property Type
|
Single Family |
|
Community Name
|
Upper Mount Royal |
|
Amenities Near By
|
Park, Playground, Recreation Nearby, Schools, Shopping |
|
Features
|
Back Lane, No Animal Home, No Smoking Home, Level |
|
Parking Space Total
|
4 |
|
Plan
|
2410471 |
|
Structure
|
Deck, See Remarks |
Building
|
Bathroom Total
|
5 |
|
Bedrooms Above Ground
|
4 |
|
Bedrooms Below Ground
|
3 |
|
Bedrooms Total
|
7 |
|
Appliances
|
Washer, Refrigerator, Range - Gas, Dishwasher, Dryer, Oven - Built-in, Hood Fan |
|
Basement Development
|
Finished |
|
Basement Type
|
Full (finished) |
|
Constructed Date
|
2026 |
|
Construction Material
|
Wood Frame |
|
Construction Style Attachment
|
Detached |
|
Cooling Type
|
Central Air Conditioning |
|
Fireplace Present
|
Yes |
|
Fireplace Total
|
1 |
|
Flooring Type
|
Carpeted, Hardwood, Tile |
|
Foundation Type
|
Poured Concrete |
|
Half Bath Total
|
1 |
|
Heating Type
|
Forced Air |
|
Stories Total
|
1 |
|
Size Interior
|
3,546 Ft2 |
|
Total Finished Area
|
3546 Sqft |
|
Type
|
House |
Parking
Land
|
Acreage
|
No |
|
Fence Type
|
Fence |
|
Land Amenities
|
Park, Playground, Recreation Nearby, Schools, Shopping |
|
Landscape Features
|
Landscaped |
|
Size Depth
|
36.57 M |
|
Size Frontage
|
15.24 M |
|
Size Irregular
|
558.00 |
|
Size Total
|
558 M2|4,051 - 7,250 Sqft |
|
Size Total Text
|
558 M2|4,051 - 7,250 Sqft |
|
Zoning Description
|
R-cg |
Rooms
| Level |
Type |
Length |
Width |
Dimensions |
|
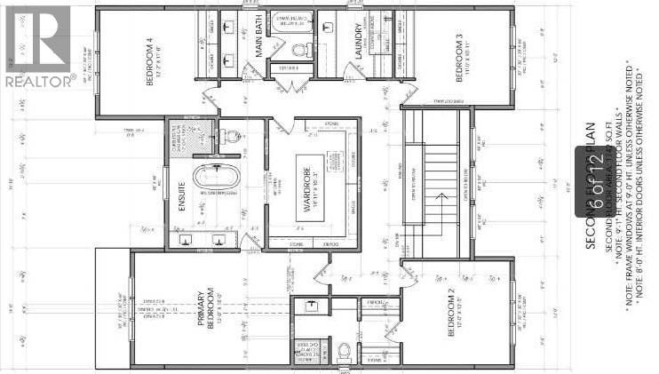
Second Level |
Other |
|
|
14.83 Ft x 10.25 Ft |
|
Second Level |
Primary Bedroom |
|
|
12.92 Ft x 22.42 Ft |
|
Second Level |
Laundry Room |
|
|
7.83 Ft x 8.67 Ft |
|
Second Level |
5pc Bathroom |
|
|
14.92 Ft x 11.00 Ft |
|
Second Level |
3pc Bathroom |
|
|
7.58 Ft x 7.50 Ft |
|
Second Level |
Other |
|
|
7.58 Ft x 4.67 Ft |
|
Second Level |
Bedroom |
|
|
12.17 Ft x 13.67 Ft |
|
Second Level |
Bedroom |
|
|
11.00 Ft x 12.17 Ft |
|
Second Level |
Bedroom |
|
|
11.92 Ft x 12.42 Ft |
|
Second Level |
5pc Bathroom |
|
|
7.83 Ft x 10.75 Ft |
|
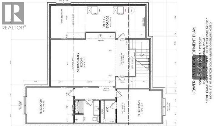
Basement |
Furnace |
|
|
11.00 Ft x 170.50 Ft |
|
Basement |
Media |
|
|
18.50 Ft x 29.25 Ft |
|
Basement |
Bedroom |
|
|
11.50 Ft x 15.58 Ft |
|
Basement |
Bedroom |
|
|
10.92 Ft x 11.42 Ft |
|
Basement |
Bedroom |
|
|
11.33 Ft x 13.42 Ft |
|
Basement |
4pc Bathroom |
|
|
7.50 Ft x 8.83 Ft |
|
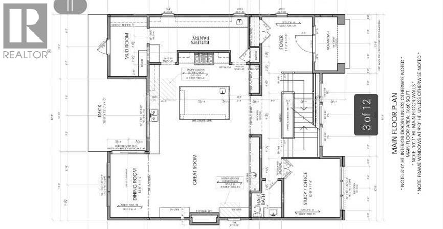
Main Level |
Study |
|
|
12.00 Ft x 11.42 Ft |
|
Main Level |
Other |
|
|
12.08 Ft x 7.58 Ft |
|
Main Level |
2pc Bathroom |
|
|
7.58 Ft x 6.08 Ft |
|
Main Level |
Foyer |
|
|
11.08 Ft x 13.00 Ft |
|
Main Level |
Other |
|
|
9.83 Ft x 20.00 Ft |
|
Main Level |
Kitchen |
|
|
16.92 Ft x 20.33 Ft |
|
Main Level |
Great Room |
|
|
16.75 Ft x 20.17 Ft |
|
Main Level |
Dining Room |
|
|
13.00 Ft x 8.08 Ft |
https://www.realtor.ca/real-estate/29610810/3241-alfege-street-sw-calgary-upper-mount-royal