282 Erb Street W Waterloo, Ontario N2L 1W3

$3,288,000

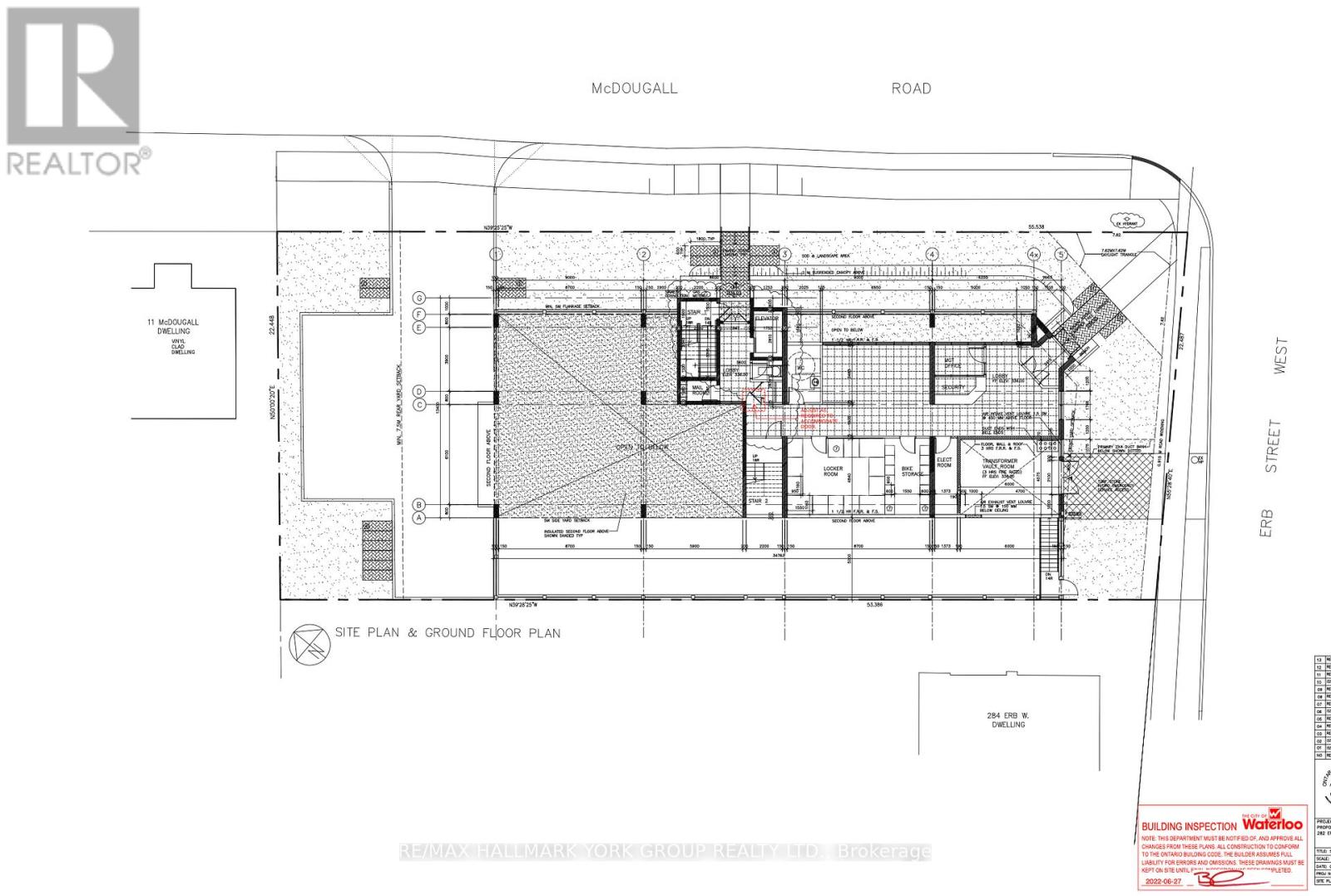
Previously approved site plan for a 35-unit rental/condominium development, zoned RMU-20 (Residential Mixed Use)-a compelling opportunity tailored for small to mid-sized developers targeting a proven, high-demand rental corridor.Positioned just steps from the University of Waterloo and Wilfrid Laurier University, the property is ideally suited for student housing as well as potential senior/retirement-oriented rental concepts. The location offers consistent, year-round rental demand driven by a strong academic and local community base. Walking distance to both campuses, combined with a direct bus stop at the doorstep, ensures exceptional accessibility and enduring tenant appeal.Offered at land value with existing building permits in place (subject to amendment for updated plans), this is a rare, near shovel-ready development opportunity-allowing investors to accelerate timelines and unlock value with minimal upfront entitlement risk. (id:64343)

Property Details

MLS® Number X13007430
Property Type Vacant Land

Building

Utility Water Municipal Water

Land

Acreage No
Size Depth 172 Ft ,5 In
Size Frontage 73 Ft ,9 In
Size Irregular 73.77 X 172.49 Ft
Size Total Text 73.77 X 172.49 Ft|under 1/2 Acre
Zoning Description Rmu-20 Residential Mixed-use Zone

Utilities

Cable Available
Electricity Available
Sewer Available

https://www.realtor.ca/real-estate/29614924/282-erb-street-w-waterloo

Contact Us

Contact us for more information


Generating Captcha

Your Favourites

 

No Favourites Found