2 - 2 Alderson Court New Tecumseth, Ontario L9R 2B7

3,075 ft2
Partially Air Conditioned Forced Air

$18 / ft2

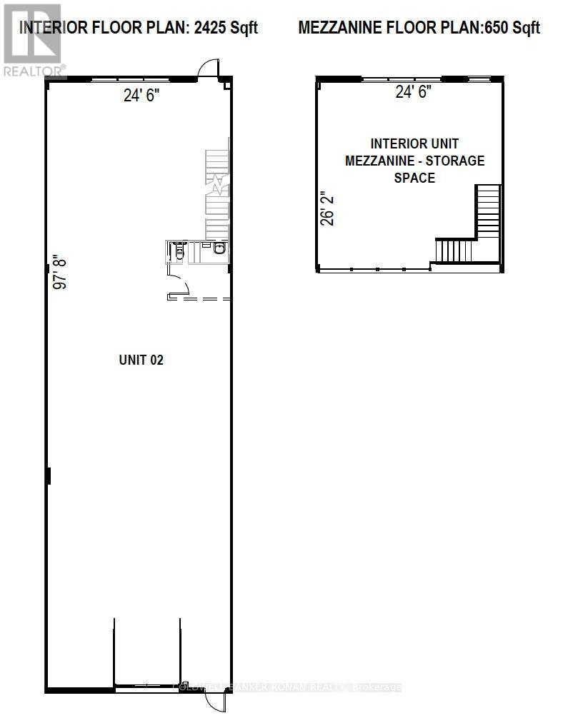
Elevate Your Business With Alliston's New Premier Industrial-Office OpportunityUnlock the potential of your business in one of Alliston's fastest-growing employment districts. Whether you are looking to expand or establish a new flagship location, 2 Alderson Court offers an exceptional opportunity to lease modern, new-construction units designed for high-performance businesses.Position your team in a high-exposure hub just minutes from the Honda Manufacturing facility and Highway 89, offering seamless connectivity within a rapidly growing business park. These modern industrial units feature versatile layouts from 2,425 to 3,075 SF, boasting 22 ft clear heights and massive 10' x 14' rear drive-in doors for maximum logistical efficiency. Each space is built for performance with energy-efficient systems, ample parking, and a 650 SF light-filled mezzanine perfect for office or storage use.Zoned EA2-13, it supports a wide range of uses, including office, light manufacturing, contractor services, and research and development, making it a versatile and attractive option. (id:64343)

Property Details

MLS® Number N13022288
Property Type Industrial
Community Name Alliston

Building

Age New Building
Cooling Type Partially Air Conditioned
Heating Fuel Natural Gas
Heating Type Forced Air
Size Interior 3,075 Ft2
Type Multi-tenant Industrial
Utility Water Municipal Water

Land

Acreage No
Size Depth 97 Ft ,9 In
Size Frontage 24 Ft ,7 In
Size Irregular Unit=24.6 X 97.8 Ft
Size Total Text Unit=24.6 X 97.8 Ft
Zoning Description Ea2-13

https://www.realtor.ca/real-estate/29631713/2-2-alderson-court-new-tecumseth-alliston-alliston

Contact Us

Contact us for more information


Generating Captcha

Your Favourites

 

No Favourites Found