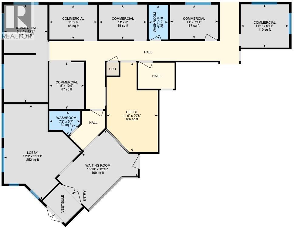
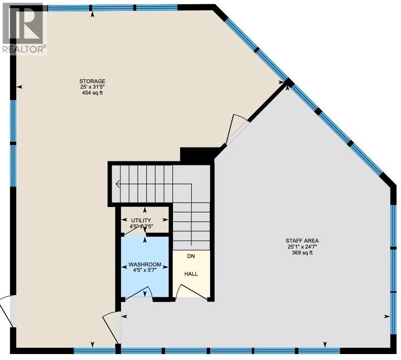
Prime medical and commercial office space available in Sarnia’s desirable North end. This clean, bright suite features high ceilings, well-appointed finished offices, and ample on-site parking. Flexible layout options include both private and shared entrances, with potential access to a shared mezzanine area. Zoned OC1, the property accommodates a wide range of professional uses. The suite offers approximately 2,500 square feet, with the ability to customize the space to suit your specific needs. Lease rate is quoted per square foot, plus utilities and HST. Additional rent (CAMt) is estimated at $5.00 per square foot. (id:64343)
| MLS® Number | 26008195 |
| Property Type | Industrial |
| Features | Treed, Corner Site, Visual Exposure |
| Constructed Date | 2001 |
| Cooling Type | Air Conditioned |
| Fire Protection | Full Sprinkler System |
| Flooring Type | Cushion/lino/vinyl |
| Heating Fuel | Natural Gas |
| Heating Type | Forced Air, Furnace |
| Acreage | No |
| Size Irregular | 289 X 185 / 0.761 Ac |
| Size Total Text | 289 X 185 / 0.761 Ac |
| Zoning Description | Oc1 |
https://www.realtor.ca/real-estate/29622321/1475-exmouth-street-sarnia
Contact us for more information