11927 242 Road Fort St. John, British Columbia V1J 4M7

Acreage

$22 / ft2

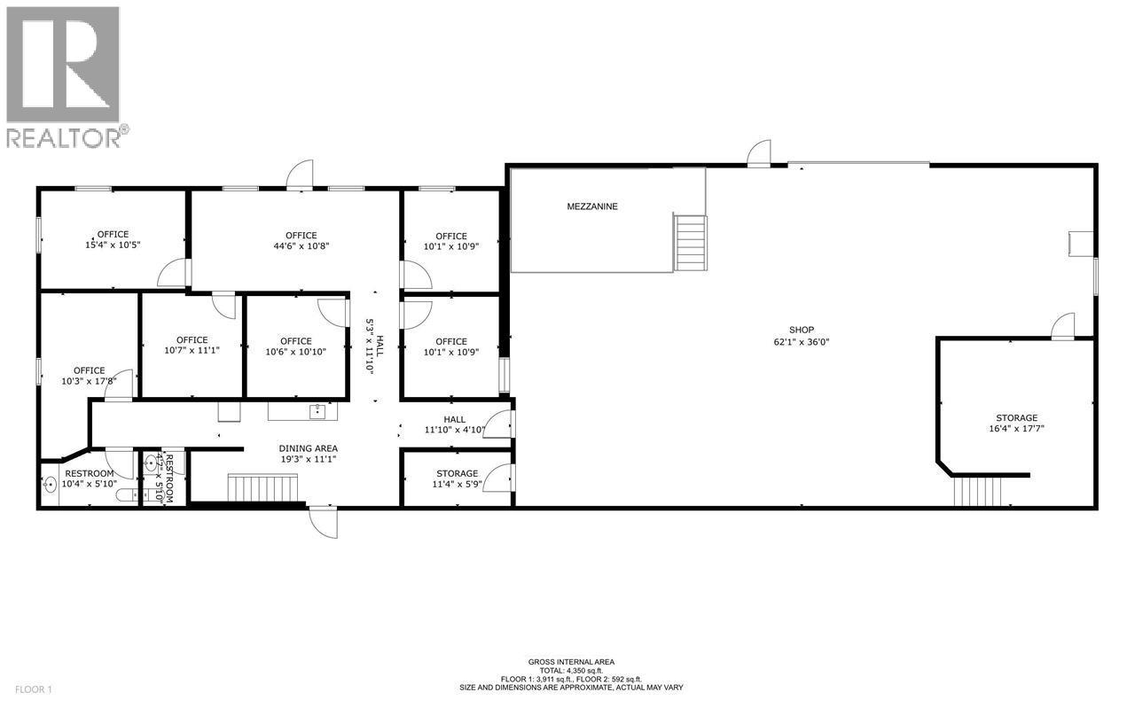
Position your business for success with this Light Industrial zoned shop & office building located right off the Alaska Highway, west of Rona & minutes from downtown. Offering 4,503 sq. ft. of interior space, this property features a balanced layout with six offices and a 62' x 36' shop equipped with 14'x 14' overhead door, a mezzanine, & additional storage. The 3-acre site includes a fully fenced, well-graveled yard w/ample parking & excellent turnaround space for trucks. A 20' sea can & 20'x30' Quonset provide extra storage. A security system is already in place for your peace of mind. This property supports a wide range of industrial uses & provides the space and infrastructure needed to operate and grow efficiently. A solid foundation for your next phase of business operations. (id:64343)

Property Details

MLS® Number C8077813
Property Type Industrial

Building

Constructed Date 9999
Fire Protection Security System

Land

Acreage Yes
Size Irregular 3
Size Total 3 Ac
Size Total Text 3 Ac

https://www.realtor.ca/real-estate/29598906/11927-242-road-fort-st-john

Contact Us

Contact us for more information


Generating Captcha

Your Favourites

 

No Favourites Found