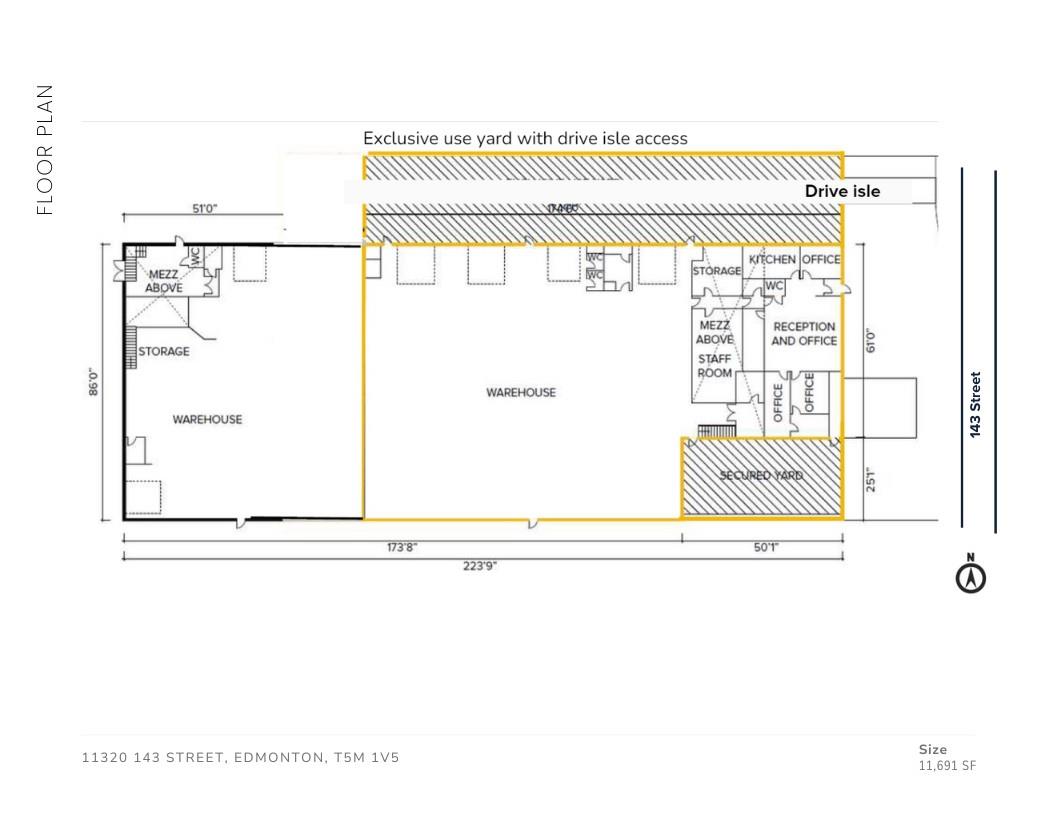
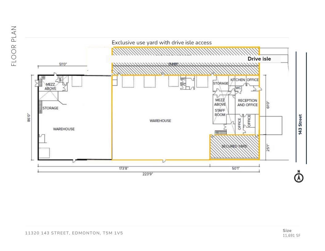
11320 143 Street Nw Edmonton, Alberta T5M 1V5

11,691 ft2
Acreage

*NEW* Price improvement!Productivity. What every top line focused business owner craves. Introducing 11,691 SF of industrial warehouse, located South of Yellowhead Trail. What you need to know is this location was structurally designed to help you focus on increasing your business throughput. So you can focus on driving the top line, and save time doing it. This property features multiple overhead doors, an open concept warehouse and excellent power.Please see the brochure for the best viewing experience. (id:64343)

Property Details

MLS® Number 44114951
Property Type Industrial

Building

Constructed Date 1958
Size Interior 11,691 Ft2

Land

Acreage Yes
Size Irregular 50965.2
Size Total 50965.2 Sqft|1 - 3 Acres
Size Total Text 50965.2 Sqft|1 - 3 Acres

https://www.realtor.ca/real-estate/29225724/11320-143-street-nw-edmonton

Contact Us

Contact us for more information


Generating Captcha

Your Favourites

 

No Favourites Found